|
Roger Mimó : LE PATRIMOINE ARCHITECTURAL DU SUD DU MAROC |
|
|
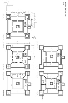
Inventaire architectural du Sud du Maroc > L’oasis de Skoura > Amerhidil AmerhidilGPS : 31º 02,788’ N, 06º 34,888’ W. Typologie : maison fortifiée. Date de construction : d’après Henri Terrasse (1938), elle fut bâtie en 1911 par Mohamed ben Brahim El Naciri, maître de Coran du caïd Madani El Glaoui, qui lui envoya son équipe de massons pour la construire. État de conservation en 2025 : excellent. Photos actuelles :
Dessins et photos anciennes :
Mentions bibliographiques : Dj. Jacques-Meunié : Architectures et habitats du Dadès, pages 27-28.
|
![]() |
|
|
|
|
![]() |
|
|
![]() |
|
|
Contact avec l’auteur :
© Roger Mimó. Version française : Marc Belin. |