|
Roger Mimó : LE PATRIMOINE ARCHITECTURAL DU SUD DU MAROC |
|
|
Inventaire architectural du Sud du Maroc > L’oasis de Skoura > Dar Al Madani, Roda Dar Al Madani, RodaTypologie : maison fortifiée. Date de construction : deuxième moitié du XIXe siècle, par une famille originaire du Haut Atlas. État de conservation en 2022 : dégradée. Photos actuelles :
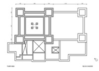
Dessins et croquis :
|
![]() |
|
|
|
|
![]() |
|
|
![]() |
|
|
Contact avec l’auteur :
© Roger Mimó. Version française : Marc Belin. |