Tamjeyert, Dadès

Roger Mimó :

LE PATRIMOINE ARCHITECTURAL DU SUD DU MAROC

Hôtel Tomboctou, Tinghir

Inventaire architectural du Sud du Maroc > La vallée du Todra > Agoudim n’Aït Yazza

Agoudim n’Aït Yazza

GPS : 31º 26,478’ N, 05º 23,860’ W.

Typologie : village muré.

Date de construction : 1880.

Taille : 14 400 m2.

État de conservation en 2021 : très délabré.

Photos actuelles :

Agoudim n’Aït Yazza Agoudim n’Aït Yazza Agoudim n’Aït Yazza Agoudim n’Aït Yazza

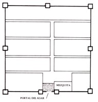
Croquis :

Agoudim n’Aït Yazza

Mentions bibliographiques : BÜCHNER, Hans-Joachim. Le village « post-qsourien » des Aït Atta du Bas Todrha (Maroc presaharien) et l’impact du droit coutumier, en Le nomade, l’oasis et la ville, actes de la table ronde tenue à Tours les 21-22-23 septembre 1989. Tours : Fascicule de recherches nº 20, 1989.

Monument antérieur Monument suivant
Biographie de Roger Mimó Qu’est-ce qu’une kasbah? Loger dans une ancienne kasbah. Kasbahs en vente. Livres de Roger Mimó.
Oeuvres de la famille de Roger MimŽoacute; Les montagnes du Maroc. La route des mille kasbahs. Tinghir et la vallée du Todra Le voyage d’Ali Bey.

Contact avec l’auteur : E-mail de Roger Mimó.

© Roger Mimó. Version française : Marc Belin.