Tamjeyert, Dadès

Roger Mimó :

LE PATRIMOINE ARCHITECTURAL DU SUD DU MAROC

Hôtel Tomboctou, Tinghir

Inventaire architectural du Sud du Maroc > La vallée du Ziz, district du Tafilalet > Ksar Oulad Abdelhalim

Ksar Oulad Abdelhalim

GPS : 31º 16,209’ N, 04º 14,510’ W.

Typologie : Fortification du sultan.

Date de construction : 1361, mais il fut reconstruit en 1846.

Importance historique : au XIVe siècle, c’était la résidence des fils d’Abdelhalim Ben Abou Ali Omar, prince mérinide qui se fit proclamer sultan à Sijilmassa en 1361. Au XIXe siècle c’était la résidence de Moulay Rachid, frère et khalifa su sultan au Tafilalet.

État de conservation en 2022 : il a été partiellement restauré.

Photos actuelles :

Ksar Oulad Abdelhalim Ksar Oulad Abdelhalim Ksar Oulad Abdelhalim Ksar Oulad Abdelhalim
Ksar Oulad Abdelhalim

Photos anciennes :

Ksar Oulad Abdelhalim
Dj. Jacques-Meunié, 1940
Ksar Oulad Abdelhalim
Attilio Gaudio, 198
Ksar Oulad Abdelhalim
Attilio Gaudio, 198
Ksar Oulad Abdelhalim
Attilio Gaudio, 1980
Ksar Oulad Abdelhalim
Jordi Esteva, 1996
Ksar Oulad Abdelhalim
Roger Mimó, 2007

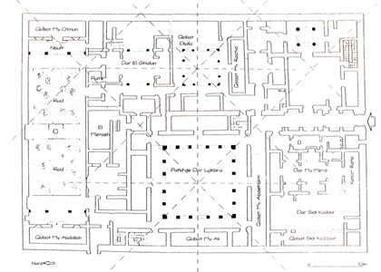
Croquis :

Ksar Oulad Abdelhalim
Centre d’études et Recherches Alaouites

Mentions bibliographiques : JACQUES-MEUNIÉ, Djinn. Abbar, cité royale du Tafilalt. Hespéris. Paris: 1959, nº XLVI – 1-2e. ttre., p. 7-72.

Monument antérieur Monument suivant
Biographie de Roger Mimó Qu’est-ce qu’une kasbah? Loger dans une ancienne kasbah. Kasbahs en vente. Livres de Roger Mimó.
Oeuvres de la famille de Roger MimŽoacute; Les montagnes du Maroc. La route des mille kasbahs. Tinghir et la vallée du Todra Le voyage d’Ali Bey.

Contact avec l’auteur : E-mail de Roger Mimó.

© Roger Mimó. Version française : Marc Belin.