|
Roger Mimó : LE PATRIMOINE ARCHITECTURAL DU SUD DU MAROC |
|
|
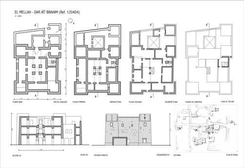
Inventaire architectural du Sud du Maroc > L’oasis de Skoura > El Mellah ou Aït Brahim, Roha El Mellah ou Aït Brahim, RohaTypologie : maison fortifiée. Date de construction probable : XIXe siècle. Information historique : elle appartenait à des Juifs qui ont émigré en 1967. État de conservation en 2022 : assez bon. Photos actuelles :
Dessins et photos anciennes :
|
![]() |
|
|
|
|
![]() |
|
|
![]() |
|
|
Contact avec l’auteur :
© Roger Mimó. Version française : Marc Belin. |