|
Roger Mimó : LE PATRIMOINE ARCHITECTURAL DU SUD DU MAROC |
|
|
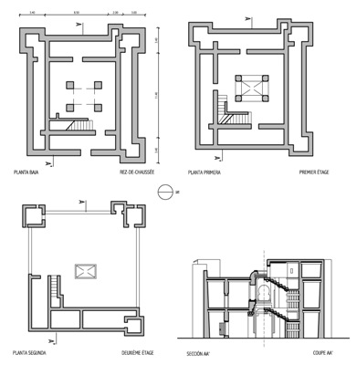
Inventaire architectural du Sud du Maroc > L’oasis de Skoura > Aït Sizine, Oulad Brahim Aït Sizine, Oulad BrahimTypologie : maison fortifiée. Date de construction : vers 1900. État de conservation en 2022 : moyen. Photos actuelles :
Dessins et croquis :
|
![]() |
|
|
|
|
![]() |
|
|
![]() |
|
|
Contact avec l’auteur :
© Roger Mimó. Version française : Marc Belin. |