Tamjeyert, Dadès

Roger Mimó :

LE PATRIMOINE ARCHITECTURAL DU SUD DU MAROC

Hôtel Tomboctou, Tinghir

Inventaire architectural du Sud du Maroc > L’oasis de Skoura > Aït Ben Iggass, Agoumat

Aït Ben Iggass, Agoumat

GPS : 31º 00,720’ N, 06º 35,972’ W.

Typologie : agglomération de hameaux et maisons fortifiés.

Date de construction probable : XIXe siècle

État de conservation en 2025 : en ruine.

Photos actuelles :

Aït Ben Iggass, Agoumat
Youssef Moustaader, 2025
Aït Ben Iggass, Agoumat
Youssef Moustaader, 2025
Aït Ben Iggass, Agoumat
Youssef Moustaader, 2025
Aït Ben Iggass, Agoumat
Youssef Moustaader, 2025

Photos anciennes :

Aït Ben Iggass, Agoumat
UPV/CERKAS, 2002
Aït Ben Iggass, Agoumat
UPV/CERKAS, 2002
Aït Ben Iggass, Agoumat
UPV/CERKAS, 2002
Aït Ben Iggass, Agoumat
UPV/CERKAS, 2002
Aït Ben Iggass, Agoumat
Roger Mimó, 2014
Aït Ben Iggass, Agoumat
Roger Mimó, 2014

Dessins et photos anciennes :

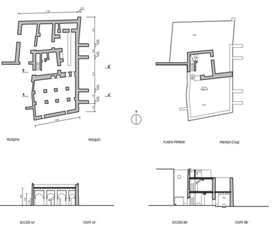
Aït Ben Iggass, Agoumat
UPV/CERKAS - La mosquée
Aït Ben Iggass, Agoumat
UPV/CERKAS
Monument antérieur Monument suivant
Biographie de Roger Mimó Qu’est-ce qu’une kasbah? Loger dans une ancienne kasbah. Kasbahs en vente. Livres de Roger Mimó.
Oeuvres de la famille de Roger MimŽoacute; Les montagnes du Maroc. La route des mille kasbahs. Tinghir et la vallée du Todra Le voyage d’Ali Bey.

Contact avec l’auteur : E-mail de Roger Mimó.

© Roger Mimó. Version française : Marc Belin.