Tamjeyert, Dadès

Roger Mimó :

LE PATRIMOINE ARCHITECTURAL DU SUD DU MAROC

Hôtel Tomboctou, Tinghir

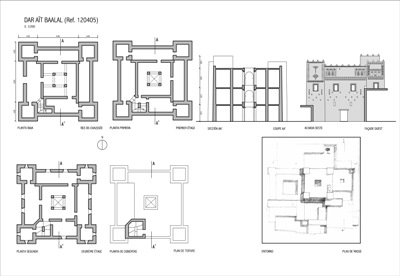
Inventaire architectural du Sud du Maroc > L’oasis de Skoura > Aït Baallal, Roha

Aït Baallal, Roha

Typologie : maison fortifiée.

Date de construction : 1932.

État de conservation en 2025 : bon.

Photos actuelles :

Aït Baallal, Roha
Youssef Moustaader
Aït Baallal, Roha
Youssef Moustaader
Aït Baallal, Roha
Youssef Moustaader
Aït Baallal, Roha
Youssef Moustaader

Photos anciennes :

Aït Baallal, Roha
UPV/CERKAS, 2002
Aït Baallal, Roha
UPV/CERKAS, 2002

Dessins et croquis :

Aït Baallal, Roha
UPV/CERKAS
Monument antérieur Monument suivant
Biographie de Roger Mimó Qu’est-ce qu’une kasbah? Loger dans une ancienne kasbah. Kasbahs en vente. Livres de Roger Mimó.
Oeuvres de la famille de Roger MimŽoacute; Les montagnes du Maroc. La route des mille kasbahs. Tinghir et la vallée du Todra Le voyage d’Ali Bey.

Contact avec l’auteur : E-mail de Roger Mimó.

© Roger Mimó. Version française : Marc Belin.