Tamjeyert, Dadès

Roger Mimó :

LE PATRIMOINE ARCHITECTURAL DU SUD DU MAROC

Hôtel Tomboctou, Tinghir

Inventaire architectural du Sud du Maroc > L’oasis de Skoura > Abid Allah Beni l’Faquih, Oulad Daoud (Oulad Maaguel)

Abid Allah Beni l’Faquih, Oulad Daoud (Oulad Maaguel)

GPS : 31º 01,846’ N, 06º 35,168’ W.

Typologie : maison fortifiée.

Date de construction probable : XIXe siècle

État de conservation en 2025 : en ruine.

Photos actuelles :

Abid Allah Beni l’Faquih, Oulad Daoud (Oulad Maaguel)
Youssef Moustaader
Abid Allah Beni l’Faquih, Oulad Daoud (Oulad Maaguel)
Youssef Moustaader
Abid Allah Beni l’Faquih, Oulad Daoud (Oulad Maaguel)
Youssef Moustaader
Abid Allah Beni l’Faquih, Oulad Daoud (Oulad Maaguel)
Youssef Moustaader

Photos anciennes :

Abid Allah Beni l’Faquih, Oulad Daoud (Oulad Maaguel)
Roger Mimó, 2002
Abid Allah Beni l’Faquih, Oulad Daoud (Oulad Maaguel)
Roger Mimó, 2002
Abid Allah Beni l’Faquih, Oulad Daoud (Oulad Maaguel)
Roger Mimó, 2002
Abid Allah Beni l’Faquih, Oulad Daoud (Oulad Maaguel)
Roger Mimó, 2002
Abid Allah Beni l’Faquih, Oulad Daoud (Oulad Maaguel)
UPV/CERKAS, 2002
Abid Allah Beni l’Faquih, Oulad Daoud (Oulad Maaguel)
UPV/CERKAS, 2002

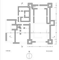
Dessins et croquis :

Abid Allah Beni l’Faquih, Oulad Daoud (Oulad Maaguel)
UPV/CERKAS
Abid Allah Beni l’Faquih, Oulad Daoud (Oulad Maaguel)
UPV/CERKAS
Abid Allah Beni l’Faquih, Oulad Daoud (Oulad Maaguel)
D. Jacques-Meunié, 1962

Mentions bibliographiques : Dj. Jacques-Meunié : Architectures et habitats du Dadès, page 29.

Monument antérieur Monument suivant
Biographie de Roger Mimó Qu’est-ce qu’une kasbah? Loger dans une ancienne kasbah. Kasbahs en vente. Livres de Roger Mimó.
Oeuvres de la famille de Roger MimŽoacute; Les montagnes du Maroc. La route des mille kasbahs. Tinghir et la vallée du Todra Le voyage d’Ali Bey.

Contact avec l’auteur : E-mail de Roger Mimó.

© Roger Mimó. Version française : Marc Belin.