Tamjeyert, Dadès

Roger Mimó :

LE PATRIMOINE ARCHITECTURAL DU SUD DU MAROC

Hôtel Tomboctou, Tinghir

Inventaire architectural du sud du Maroc > Anti-Atlas occidental > Agadir Tislane n’Aït Ouassou

Agadir Tislane n’Aït Ouassou

Typologie : grenier collectif.

GPS : 30º 01,564’ N, 9º 02,372’ W.

Taille : 1000 m2.

Date de construction : vers le XVIIe ou XVIIIe siècle.

État de conservation en 2021 : en bon état.

Photos actuelles :

Agadir Tislane n'Aït Ouassou
Julio Soriano
Agadir Tislane n'Aït Ouassou
Julio Soriano

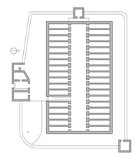
Croquis :

Agadir Tislane n'Aït Ouassou
Dj. Jacques-Meunié

Mentions bibliographiques : Herbert Popp, Mohamed Aït Hamza et Brahim El Fasskaoui : Les agadirs de l'Anti-Atlas occidental, page 236.

Monument antérieur Monument suivant
Biographie de Roger Mimó Qu’est-ce qu’une kasbah? Loger dans une ancienne kasbah. Kasbahs en vente. Livres de Roger Mimó.
Oeuvres de la famille de Roger MimŽoacute; Les montagnes du Maroc. La route des mille kasbahs. Tinghir et la vallée du Todra Le voyage d’Ali Bey.

Contact avec l’auteur : E-mail de Roger Mimó.

© Roger Mimó. Version française : Marc Belin.